The scaffolding has been taken down and the real work on the inside has been started.
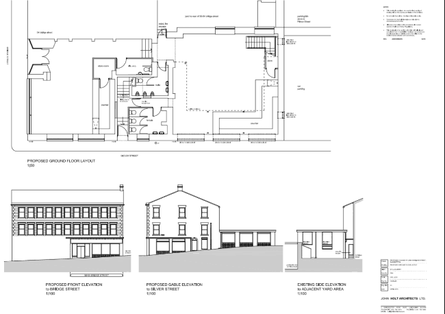
Here are the future plans for Havana Cafe:
Looking at the plans you can see lots of attention to detail has been put into creating a spacious establishment.
Looking forward to when it opens, at the rate the work is being completed that could be this summer.
Salud!





Leave a Reply